Bilocale in vendita

Torino, Via Bernardino Luini - Lucento
€ 99.000
2 locali 2 locali
65 Mq 65 Mq
1 bagno 1 bagno

Bilocale in vendita

Torino, Via Bernardino Luini - Lucento

Descrizione annuncio

Nel cuore del quartiere Lucento a Torino, proponiamo un appartamento in vendita che unisce comfort e funzionalità.

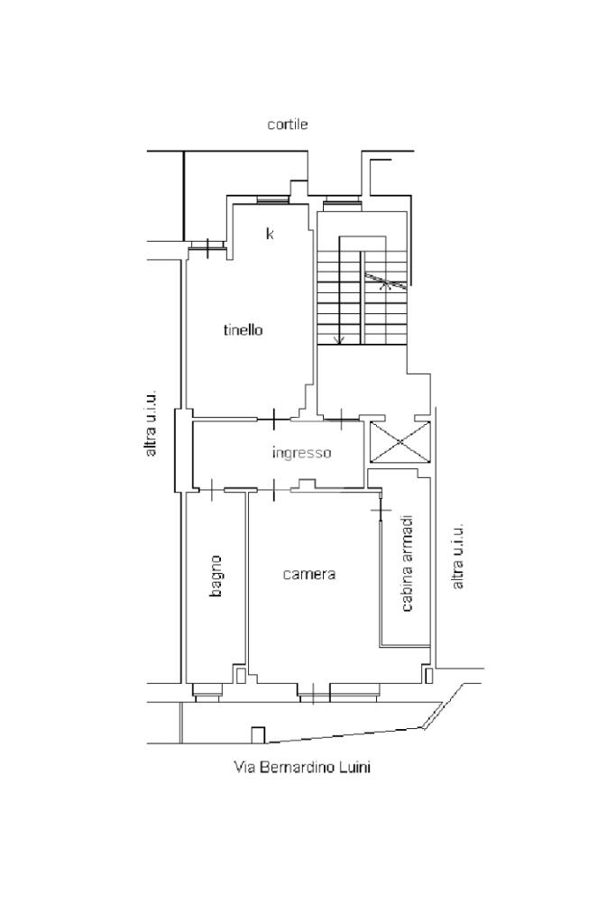
Situato al piano basso di un edificio dotato di ascensore, l'immobile si estende su una superficie di 65 mq.

L'appartamento è composto da due locali ben distribuiti: una luminosa zona giorno e una camera da letto accogliente.

La presenza di una cabina armadio offre un pratico spazio per l'organizzazione degli abiti e degli accessori.

Il bagno è funzionale e ben tenuto. Due balconi completano la proprietà, offrendo spazi esterni ideali per momenti di relax. Costruito nel 1968, l'edificio si inserisce in un contesto residenziale tranquillo e ben servito, con facile accesso ai principali servizi e trasporti pubblici.

Questa soluzione abitativa rappresenta un'opportunità interessante per chi cerca un'abitazione pratica e ben collegata nella città di Torino.

Mostra tutto

Nelle vicinanze

Trasporto pubblico Trasporto pubblico
Bernini
Bernini
2,6 Km
Principi D'Acaja
Principi D'Acaja
2,6 Km
Madonna di Campagna
Madonna di Campagna
680 m
Torino Dora GTT
Torino Dora GTT
1,8 Km
Largo Toscana
Largo Toscana
180 m
Ricariche auto elettriche Ricariche auto elettriche
Bluetorino Stradella
820 m
Lidl Altessano
1,1 Km
Bluetorino Risorgimento
2,3 Km
Edit Torino
2,3 Km
evway TO Statuto
2,8 Km
Scuole Scuole
Istituto per il commercio succursale Boselli
50 m
Scuola Media Statale Piergiorgio Frassati
240 m
Scuola Elementare Guido Gozzano
310 m
Scuola primaria "Margherita di Savoia"
790 m
Scuola Media Statale Giuseppe Cesare Pola
810 m
Farmacia Farmacia
Farmacia comunale
190 m
Igea
190 m
Santa Teresa SNC
280 m
Farmacia Piazza Villari
350 m
Toscana S.N..C
380 m
Ospedali Ospedali
Amedeo di Savoia
1,1 Km
Ospedale Amedeo di Savoia
1,2 Km
Ospedale Maria Vittoria
1,9 Km
Ospedale Oftalmico
2,9 Km
Supermercati Supermercati
Carrefour Market
290 m
Prestofresco
420 m
Supermercati
480 m
Pam Torino Potenza
740 m
Lidl
930 m
Negozi Negozi
Sapori del Palato
710 m
Negozi
740 m
El Pan d'na Volta
1,1 Km
Panetteria Costa Milena
1,2 Km
L'Acropoli
1,4 Km
Bar Bar
Bar Tabacchi
650 m
Vinosteria da Celestino
660 m
Supermarket
780 m
Bar
1,4 Km
I 3 Motivi
1,5 Km
Ristoranti Ristoranti
Pizzeria Gli Ulivi
580 m
IL Leone
650 m
Linopassamilvino
660 m
La Paella
730 m
Millefiori
750 m
Mostra tutto

Caratteristiche

Rif.:
61153865
Piano:
1 di 6 con ascensore (Piano basso)
Balconi:
2
Camere da letto:
1
Arredamento:
Parziale
Condizionamento:
Assente
Mostra tutto
Prezzo Prezzo
€ 99.000
Rata mutuo Rata mutuo
€ 467 / mese
Spese annue Spese annue
€ 1.000
Proponi il tuo prezzoProponi il tuo prezzo

Classe Energetica

E
E
E
E
E
E
E
E
E
EP globale non rinnovabile:
345.90 kW h/m² anno
EP globale rinnovabile:
123.09 kW h/m² anno
EP invernale del fabbricato:
EP estiva del fabbricato:
Anno di costruzione:
1960
Riscaldamento:
Centralizzato
Tipo impianto:
A radiatori
Tipo alimentazione:
Metano

Ti interessa visionare l'immobile?

Fissa un appuntamento  Fissa un appuntamento

Richiedi informazioni

Clicca su Leggi per aprire l'informativa
* Questi campi sono obbligatori

Calcola il tuo mutuo

Semplice e senza impegno
Anticipo

( % )
Mutuo

( % )

pochi semplici passi

inserisci i tuoi dati
Questionario completato
Grazie per aver richiesto un appuntamento senza impegno con un nostro Consulente del Credito e Assicurativo.

Hai inserito correttamente tutti i dati necessari e a breve riceverai una e-mail con un link da convalidare per inviare i tuoi dati.
Affiliato
Studio Borsi Sas
Via Bernardino Luini, 106/b 10149 Torino (TO)

Il nostro staff


  • Michele Picardi
    Affiliato

  • Stefano Stella
    Responsabile
Via Bernardino Luini, 106/b 10149 Torino (TO)
Zona: Lucento - C.so Potenza - C.so Toscana - C.so Lombardia
Mostra su mappa
Orari: Dal lunedì al venerdì 9.00 -12.30 15.00-20.00. Sabato 9.00-12.30 15.00 -17.00. Domenica su appuntamento
Affiliato
Studio Borsi Sas
Via Bernardino Luini, 106/b 10149 Torino (TO)

2026 Tecnocasa Franchising S.p.A. - P. IVA 08365160152 - Via Monte Bianco 60/A 20089 Rozzano (MI). Ogni agenzia ha un proprio titolare ed è autonoma. Privacy policy | Policy utilizzo | Cookie policy